摘要:最新农村自建房平面图完美融合自然与现代元素,实现居住梦想。设计注重与自然环境的和谐共生,同时融入现代建筑技术和舒适的生活设施。提供理想的居住环境,结合实用性和美观性,展现现代农村生活的魅力。
🌼设计理念:
我们的农村自建房设计,以“人与自然和谐共生”为核心理念,在尊重自然环境的基础上,融入现代生活需求,旨在打造一个既具有乡村韵味,又充满现代气息的温馨家园。
🏡平面图解析:
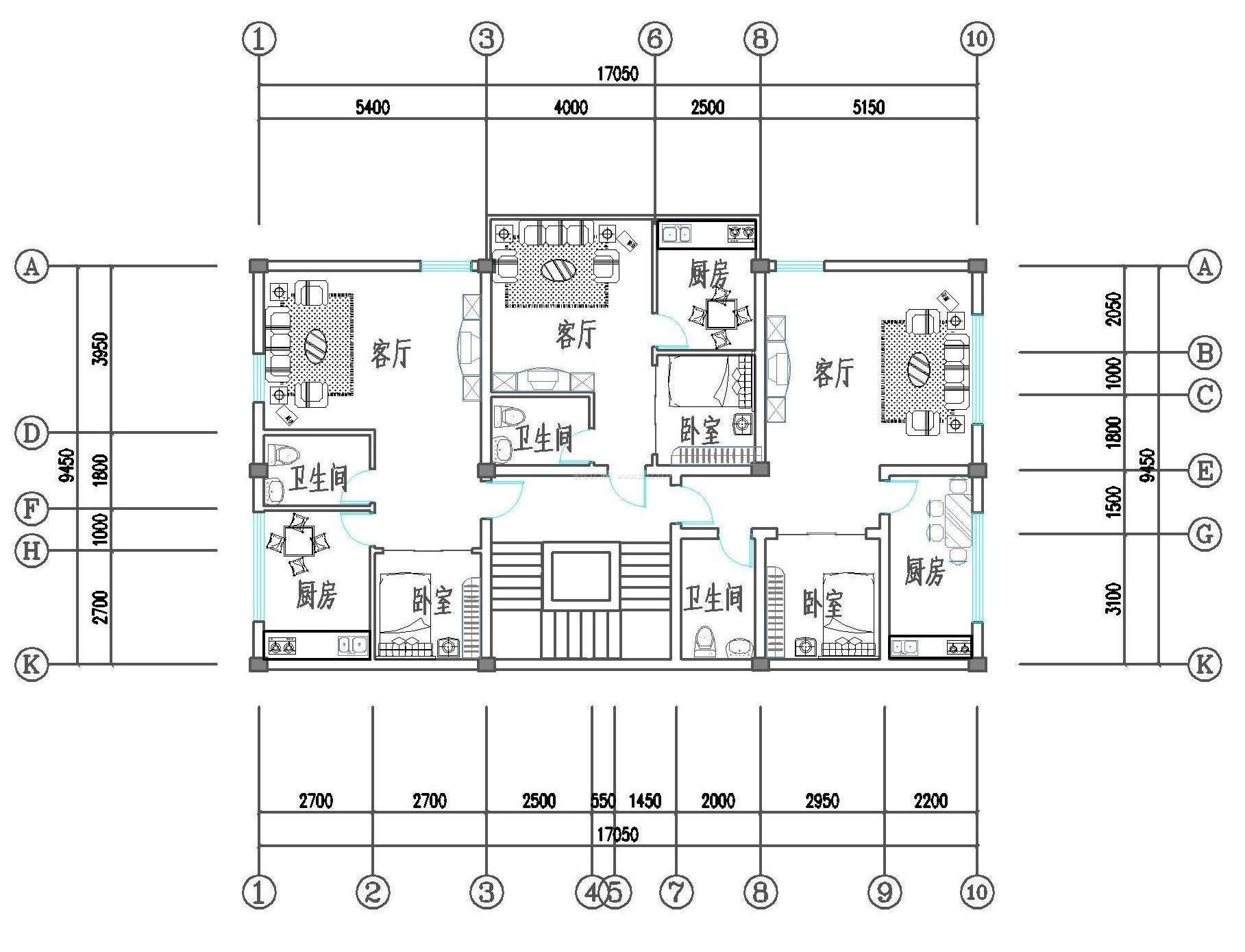
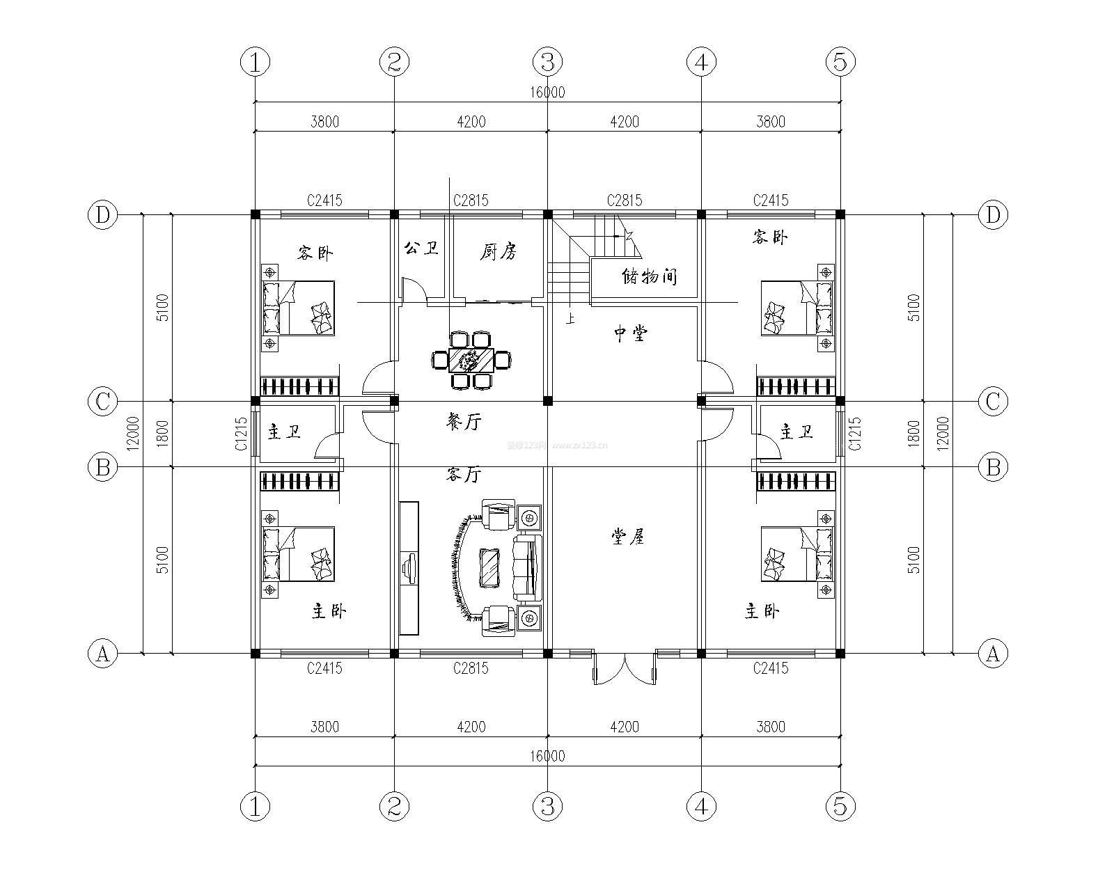
1、入口与庭院:房子入口宽敞,方便出入,门前小庭院设计,既可种植花草,又可放置休闲桌椅,尽享田园时光。
2、客厅:宽敞明亮的客厅,采用开放式设计,与庭院相连,自然光线充足,让居住者感受大自然的拥抱。
3、餐厅:紧邻厨房的餐厅设计,方便上菜,同时与客厅形成互动,增进家庭聚餐的乐趣,共享美好时光。
4、厨房:现代化厨房设计,配备齐全,操作流线合理,方便烹饪,让居住者享受烹饪的乐趣。
5、卧室:主卧室设计宽敞,带有独立卫生间和衣帽间,满足居住者的需求,次卧室可作为儿童房或客房,为家人和朋友提供舒适的住宿体验。
6、卫生间:干湿分离的设计,干净清爽,满足家庭成员的日常需求,提升居住品质。
7、阳台:宽敞的阳台,既可晾晒衣物,又可欣赏美景,享受悠闲时光,感受大自然的魅力。
8、娱乐室:设有娱乐室,满足家庭成员的休闲娱乐需求,提升家庭生活的乐趣。
9、车库:考虑到现代农村的交通状况,设有独立车库,方便停放车辆,提升生活的便利性。
🌱自然融合:
我们的农村自建房设计,注重与自然环境的融合,通过大面积的玻璃窗,引入自然光线,让室内空间更加明亮;利用自然通风设计,保证室内空气的流通;结合周围环境,设计景观阳台和庭院,让居住者可以尽情享受自然美景,感受大自然的魅力。
🏘现代舒适:
虽然我们的房子建在美丽的农村,但我们同样融入了现代生活的舒适元素,现代化的设计,让烹饪、居住、娱乐变得更加简单和舒适,宽敞的客厅和卧室,提供舒适的居住空间;独立的娱乐室,满足家庭成员的休闲娱乐需求,我们还考虑了现代农村的交通状况,设有独立车库,方便停放车辆,提升生活的便利性。
🔑灵活多变:
我们的农村自建房平面图设计灵活多变,可以根据你的具体需求和喜好进行调整,我们可以根据你的生活习惯、家庭结构、地理环境等因素,为你量身定制一个完美的居住空间,实现你的居住梦想。
最新农村自建房平面图以“人与自然和谐共生”为核心理念,融合自然美景与现代舒适元素,打造出一个完美的居住空间,如果你也在寻找农村自建房的灵感,不妨参考我们的设计,让我们一起实现居住梦想。
#农村自建房 #平面图设计 #自然融合 #现代舒适 #灵活多变
🔖结尾寄语:
希望大家喜欢这篇关于最新农村自建房平面图的设计分享!如有任何问题或建议,欢迎在评论区留言交流,让我们共同打造完美的家园!💬💖



还没有评论,来说两句吧...